REFRAMING THE PLAN

Projects don’t always go according to plan—and sometimes that’s where the best solutions come from.

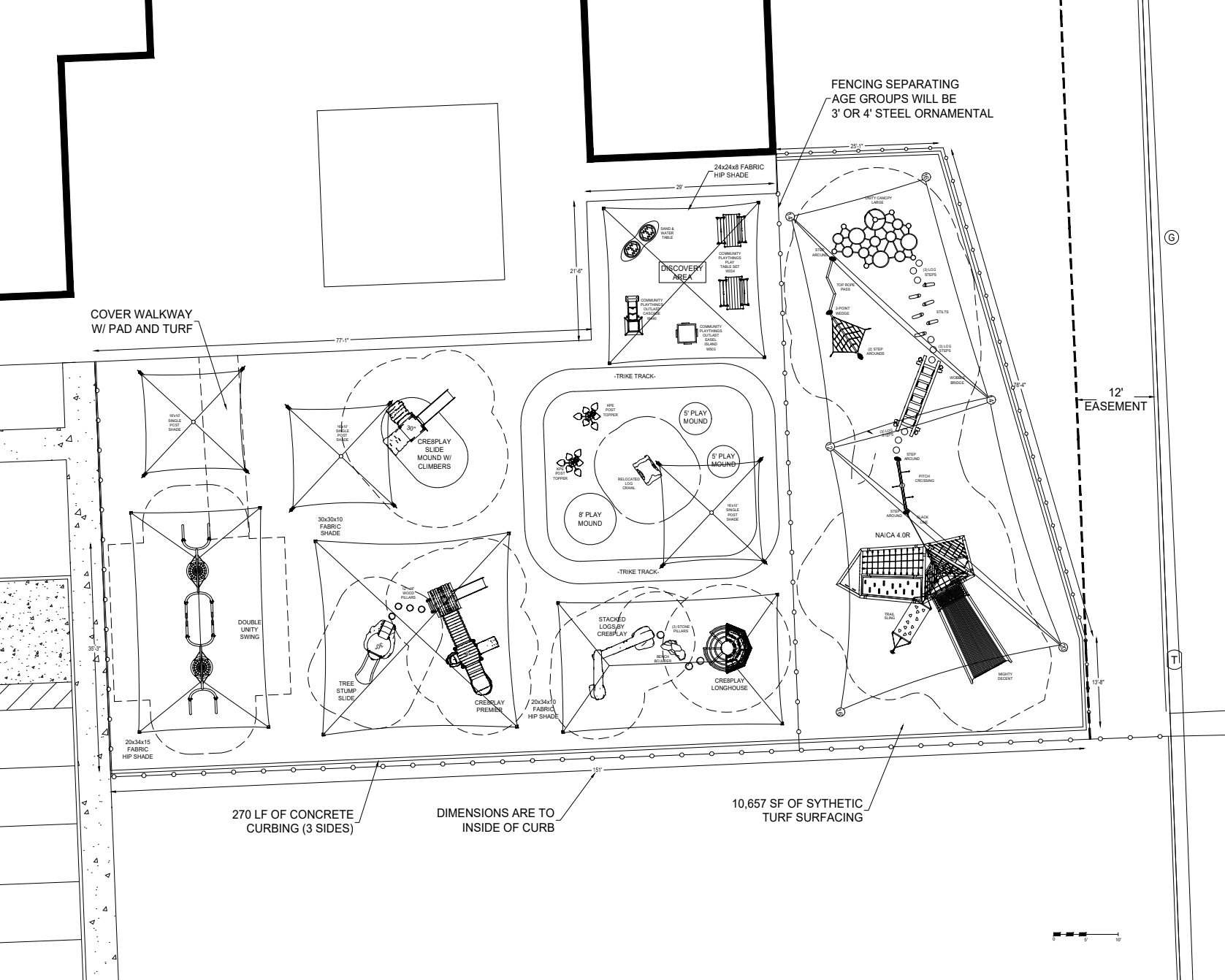
At Rockdale Learning Academy for the Peoria Tribe of Indians of Oklahoma, the original layout separated age groups, with the 5–12+ playground located on the opposite side of the building. It worked well on paper, but as the project developed, site conditions began to shift.

A new electrical transformer was introduced behind the building, requiring dedicated clearance, access, and coordination with utilities. That space quickly became unavailable, and the layout had to be rethought entirely.

Instead of two separate play areas, everything was brought together into one unified space.

Image of Playground
Image of Playground

WORKING THE GROUND

Bringing everything to one side created a new set of challenges—starting with the ground itself.

A major focus was creating a space that felt seamless with the surrounding flatwork. In our industry, avoiding step-ups and abrupt transitions is critical for both accessibility and everyday use. That meant moving a significant amount of dirt to reshape the site and bring everything flush.

Rather than waste that material, the soil removed from the playground was reused in the construction of the Tribe’s new casino. It’s a small detail, but one that ties the project back into something larger happening within the community.

DESIGNING FOR MULTIPLE AGES

With all users now sharing one space—from two-year-olds up to an after-school group of 12+—the layout became the most important part of the design.

Instead of one large playground, the space was broken into zones. Each area is scaled and positioned to naturally draw in different age groups, allowing younger children and older kids to play alongside each other without competing for the same space.

It’s a layout that supports how kids actually use the space day to day.

Image of Playground

MATERIAL & TEXTURE

Another layer of the design came through the use of materials.

A mix of robinia wood, GFRC elements, steel, and rotomolded components were intentionally brought together to create a variety of textures throughout the playground. These weren’t random selections—they were chosen to form a connected climbing and play experience.

For kids, how something feels is just as important as how it looks. Different textures invite different types of interaction, making the space more engaging and dynamic.

Image of Playground
Image of Playground
Image of Playground

SHADE AS ENVIRONMENT

Shade became a key component as the design evolved.

While some shade was included early on, additional coverage was introduced later in the process based on client input. Rather than simply adding structures, the goal was to integrate shade in a way that enhances the overall environment.

The shade structures help define the space, create comfort throughout the day, and support longer periods of use—without taking away from the overall aesthetic.

Image of Playground

ADAPTING IN REAL TIME

Construction rarely happens under perfect conditions.

This project was built through the winter months in Oklahoma, which introduced another layer of complexity. A poured-in-place trike track had been part of the design, but cold temperatures made that option unworkable. PIP requires warm, rising temperatures to install properly, and those conditions weren’t there.

Rather than force it, the design pivoted. A low-pile turf track was introduced instead, allowing trikes to move freely while maintaining durability. By using a brown turf, the track still reads as a natural dirt trail—holding onto the original design intent while adapting to real-world conditions.

MOVEMENT & SUPERVISION

With multiple zones and age groups, movement and visibility were critical.

The layout allows for clear sightlines across the space, making it easy for staff to supervise without needing to move constantly. Paths between areas feel natural, and transitions from one zone to another are intuitive.

It’s a balance between freedom and control—giving kids space to explore while keeping the environment manageable for those overseeing it.

FROM CONCEPT TO PLACE

What began as a necessary redesign ultimately led to a more cohesive outcome.

By consolidating the playground into one space and working through the challenges along the way, the result is an environment that feels intentional and complete.

It’s not just a collection of equipment—it’s a place that supports how kids learn, play, and interact every day.

Image of Playground

GETTING THE DETAILS RIGHT

Projects like this aren’t defined by one feature.

They’re defined by the accumulation of decisions—how the ground is shaped, how materials are used, how spaces are organized, and how challenges are handled along the way.

Getting those details right is what makes the difference